華埔建筑裝飾工程有限公司——河南廣播電視臺都市頻道《都市愛家》欄目指定施工方
案例基本信息:
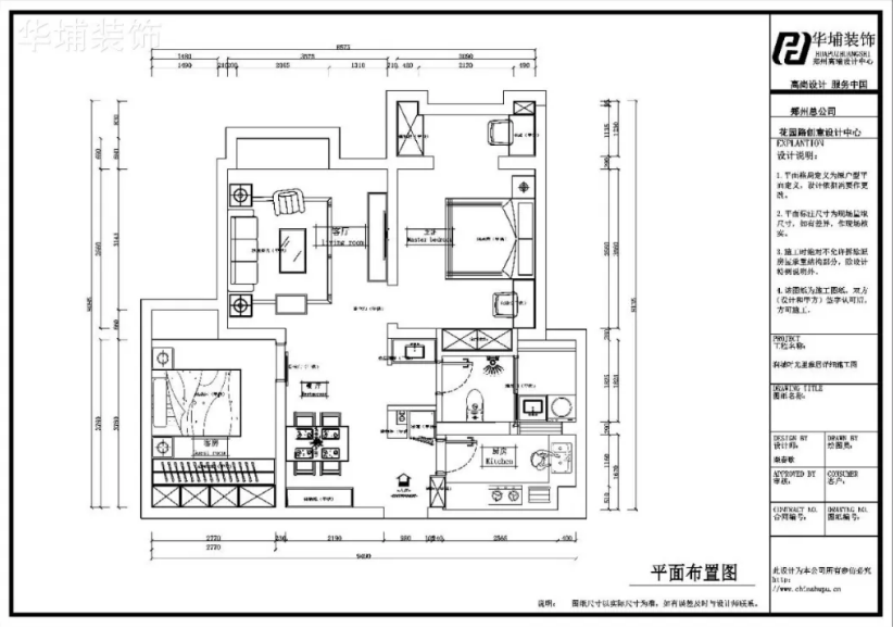
小區:潤城時光里
面積:89平
風格:現代簡約
戶型:兩室兩廳
設計師:柴春歌
造價:13萬(基裝+軟裝)
業主說: “我家目前就我自己住,平時工作也比較忙,所以我對家的要求一定是要簡單清新,空間利用要合理,儲物要充足,讓家里不至于出現雜亂無章的情況。因為我家的戶型不是很好,所以設計師就大膽地進行了改造,效果非常好,空間大了很多。
選擇華埔,一個是因為咱們公司是大品牌,品質好,再者就是有親戚是在華埔裝的,完工效果我去看了,非常不錯。在裝修過程中,因為我家需要改造的項目比較多,和物業也發生了一點點沖突,我們的設計師、工長也都非常積極地配合我去溝通去解決,整體還是非常滿意的。 ”
——潤城時光里 · 業主李鵬飛
設計說明
對于小戶型來說,空間的可塑性是非常重要的。針對業主的需求,設計師進行了大膽的改造:
1)入戶墻改造成玄關柜;
2)廚房原有陽臺改造成窗戶;
3)衛生間改造成干濕分區;
4)衛生間陽臺改造;
5)主臥空間改造。

原有的入戶是一面帶電箱的墻,設計師做了一個內嵌式的玄關柜,將電箱隱藏,同時還滿足業主對入戶鞋柜的需求。
由于廚房沒有冰箱的位置,設計師利用入戶區域做了一堵墻,將冰箱內嵌,同時做了很多開放的展示區域,用作空間的修飾點綴。
廚房做了一個L型的設計,進門右手邊是切菜做飯的區域,后期的小家電也會放在這里。廚房現在的洗菜區,原本是個陽臺,由于內部采光不是很好,所以就做了封閉設計,改成了窗戶。
入戶左手邊是餐廳, 廚房門口新建的柜子剛好起到了隔斷空間的效果,完美遮擋隱私。餐廳整體的陳設很簡單,四人位的餐椅,墨綠色靠背,深黑色磨砂材質桌面,白色的中空餐邊柜,色彩的深淺搭配將層次感凸顯。
原始戶型里的衛生間是沒有干濕分區的,設計師進行了改造,將干區單獨分離出來,后期會再做一個隔斷,起到防水和隔絕的效果。衛生間內部合并了廚房原來的陽臺,將整個空間都放大了。
由于是全房中央空調吊頂,所以在吊燈的選擇上,都以簡約的幾何造型作為點綴。在功能上,也是以沙發+小型茶幾的組合裝飾,顯得空間不那么拘謹。背景墻以金屬線條做對稱,乳膠漆跳色,壁燈點綴光源,來豐富視覺。
主臥原來的面積不大,設計師結合衛生間做了一個凹字形,柜子和墻做了平行設計,這樣就顯得空間比較敞亮。臥室陽臺進行了升高,做成書房區域,這樣既和臥室相連,又能給業主一個靜思辦公的空間,非常和諧。
次臥空間以白色打底,將干凈素雅的感覺呈現。柜子做的是意利寶定制,后現代簡約風格,木紋色+灰咖色,高級感非常強。
別墅大宅
企業簡介
誠聘英才
聯系我們
裝修知識
完工實景
報價速算
裝修貸款
友情鏈接 : 電梯安裝公司