華埔建筑裝飾工程有限公司——河南廣播電視臺都市頻道《都市愛家》欄目指定施工方
生活總得有色彩斑斕來點綴,不然回首過往還是白紙一張,沒有值得拿出來佐酒的趣事,人生豈不太蒼白!一起來欣賞這套撞色設計案例,非黑即白的世界,一定要多點顏色渲染!

案例基本信息介紹:
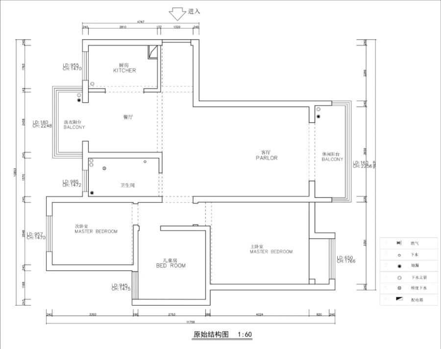
小區:泰宏建業國際城
面積:117平
戶型:三室兩廳
風格:現代風
設計師:穆輝
造價:11萬(999套餐+定制+部分軟裝)
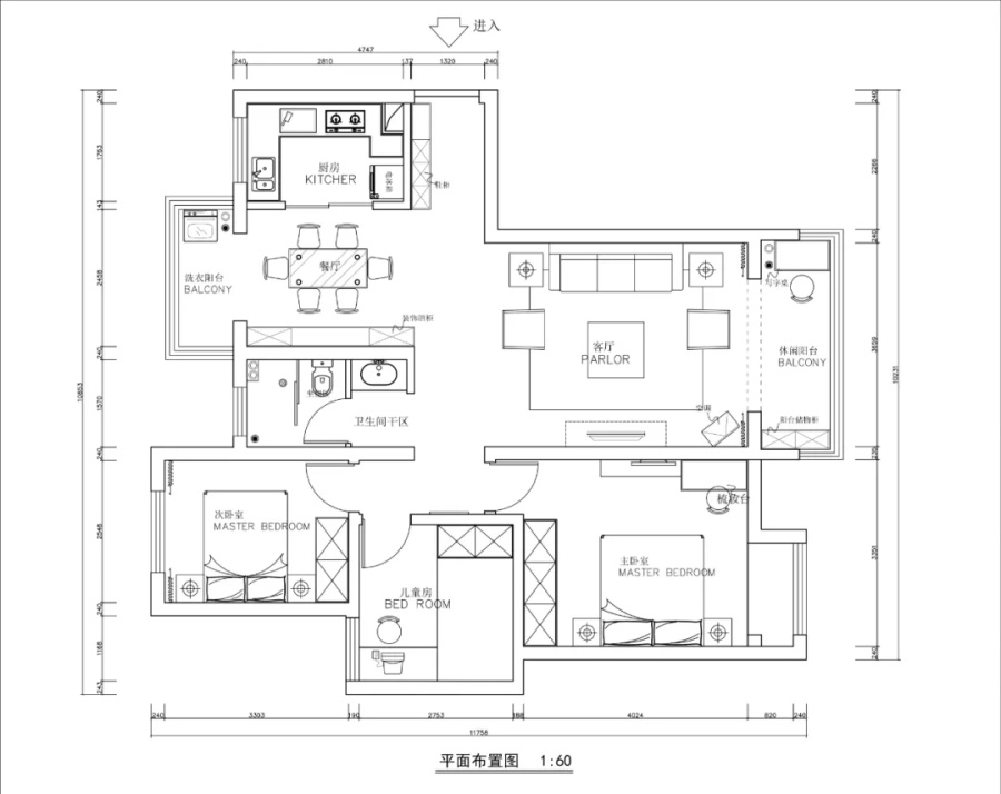
本案是小夫妻婚房,業主喜歡撞色設計,整個空間都洋溢著青春的活力,有強烈的視覺沖擊感,很跳脫,也很灑落。
入戶是一組頂天立地的玄關柜,中空、懸空、穿衣鏡、換鞋凳,每一處細節的設計,都是對雜亂生活的整理。

客廳的第一印象是鮮活,藍色、亮黃的搭配,讓空間充滿張力,不再寡淡。陽臺一席柜子華麗轉身,與撞色加持,多了一抹沉凝。



餐廳以功能與實用為主,四人位餐桌椅+卡座設計,兩側的柜子充分收納,不再有空間局限,讓待客成了游刃有余的事情。
主臥沒有那么強烈的色彩差,不同尺度的綠色、藍色在同一空間里呈現,淡然而有詩意。


次臥延續主臥的風格基調,淡黃+皮質,撐起了整個居室靜謐而平和的氣質。

以人品見品質!業主宋老師是通過朋友介紹找的華埔裝飾,剛開始也是對后期增項有著很深的疑慮,但是和設計師整體溝通后就覺得一切都很合適,沒有再對比的必要性。
宋老師家現在已經完工入住,那對于前期擔心的增項問題,都有沒有像設計師承諾的那樣落地實施呢?一起聽聽宋老師是怎么說的!

別墅大宅
企業簡介
誠聘英才
聯系我們
裝修知識
完工實景
報價速算
裝修貸款
友情鏈接 : 電梯安裝公司