華埔建筑裝飾工程有限公司——河南廣播電視臺都市頻道《都市愛家》欄目指定施工方
項目名稱丨鄭州 · 富田九鼎世家
承辦單位丨華埔建筑裝飾工程有限公司
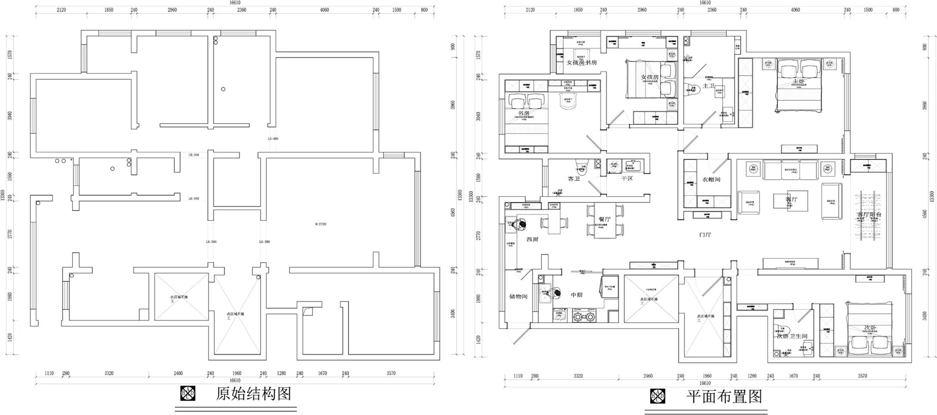
項目面積丨220㎡
戶型設計丨四室兩廳
設計風格丨古典歐式
主案設計丨馬永亮
項目經理丨馬志勇

本案業主是一家三口,寶寶一歲兩個月。男主人是東北人,性格幽默直爽,女主人盡顯內斂含蓄。所以本案結合雙方的性格特點,融于設計,呈現了一個剛柔并濟的古典歐式空間。

本案多以歐式角花、地拼、弧形、壁布刺繡、石材、燈池、金箔紙等元素,來凸顯歐式風格的古典奢華韻味。


天圓地方
入戶即玄關,以天圓地方為設計核心。整個背景石材通鋪,四角雕花,再輔以拱形造型。天花板橢圓形吊頂,燈盤內嵌燈帶,金箔紙描邊,彰顯富貴。


典雅浪漫的空間氣質
客廳以白色與香檳色作為基礎色,融合大理石、護墻板、硬包、壁布等元素,做造型拼接,營造層次感與視覺效果。客廳沙發采用3+2+1的布局,優美的弧線,古典的雕花,將歐式風格的典雅浪漫淋漓盡致地呈現。



一日三餐四季
餐廳采用六人位餐桌椅,壁布+護墻板裝飾墻面,酒柜做收納展示。一日三餐四季,星辰大海,雅俗共度。


U字型布局
“你來自山川湖海,卻甘愿囿于晝夜,廚房與愛”。生活最大的幸福,就是與愛的人忙碌著我們的生活。本案中西廚分開呈現,中廚以U字型布局,內嵌冰箱,空置小電器區域,以動線的舒適化作為設計的理念。


靜謐舒適的睡眠空間
霧霾藍軟包背景,雕花造型,微微點綴的金屬線條,皇冠造型的歐式床頭,主臥的靜謐、優雅、舒適、浪漫,盡情彰顯。由于寶寶還小,主臥床邊還放了一張嬰兒床,方便夜間照顧。



壁布刺繡鎏金雕花
次臥,孔雀藍壁布上刺繡鎏金雕花,實木雙人床,雙色拼接的窗簾,營造了沉穩端莊的休息空間。


女兒房著色素雅,主要通過飄窗改造,再造書香門第,以增加收納、學習的空間。



多功能空間
書房以多功能呈現,榻榻米連柜書桌設計,承載了強大的收納儲物的功能。



干濕分離
衛生間做干濕分離設計,左側次衛定制洗手臺,滿足洗衣機的嵌入。右側是主衛,雙臺盆設計,玻璃淋浴房,壁龕儲物,后期融入浴缸,將每一個功能都做到了盡善盡美。
![]()

主編丨胡曉慶
攝影丨王晨旭、胡曉慶
別墅大宅
企業簡介
誠聘英才
聯系我們
裝修知識
完工實景
報價速算
裝修貸款
友情鏈接 : 電梯安裝公司